
付属調理器具に「ザ・ココット ラウンド」と「トースト・ピザプレート」が新登場。
料理のプロが監修した豊富なレシピとオート調理機能がそろうリンナイ公式レシピアプリ「+R RECIPE(プラスアールレシピ)」の対象レシピにて連続調理と仕上がり調整が可能となり、調理性向上に貢献。
バーナー間の寸法拡大とグリル引き出し量アップでもっと料理がしやすく!
●細部までこだわりぬいた上質なデザイン
●お手入れのしやすさを追求した設計
●リンナイの安全機能をすべて搭載
●選べる専用調理器具(ザ・ココットシリーズ)
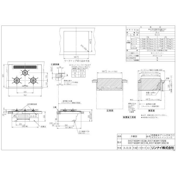
75cm幅ガラストップ プラチナミラー/フェイス ステンレス
水無し両面焼/コンロオートメニュー/オートグリル
ザ・ココット、ココットプレート、トースト・ピザプレート同梱/オーブン接続仕様
特長
●コンロ機能・・・コンロオートメニュー/温度調節機能(大・大(130℃~220℃:10℃刻み))/高温自動温度調節機能(大・大・小)/コンロタイマー(1~120分)(大・大・小)/炊飯機能(小〈ごはん(もちもち)〉)/土鍋自動炊飯機能(小)/湯わかし機能(保温時間タイマー)(大・大(1~120分))/湯わかし機能(沸とう消火)(大・大)/麺ゆで機能(大・大)/煮物機能(大・大)/Wワイド火力バーナー/エコモード
●グリル機能・・・グリルタイマー(1~15分)/水無し両面焼/遠赤外線セラミックバーナー/オートグリル/オートメニュー/ココットプレート対応/トースト・ピザプレート対応/連続オートグリル/パノラマワイドグリル
●お手入れ性能・・・イージークリーン/バーナーリング構造(シールド構造)/ヒートシンク構造/個別ワイヤーごとく/バーナーリングクリアコート加工/スモークオフ/お手入れかんたんグリル/グリル皿クリアコート加工/汚れカバー(ホーロー)/フラット焼き網(フッ素)/分解グリル
●安心機能・・・消し忘れ消火機能(大・大・小・グリル)/立消え安全装置(大・大・小・グリル)/調理油過熱防止装置(大・大・小)/焦げつき消火機能(大・大・小)/グリル過熱防止機能/鍋なし検知機能(大・大)/揺れピタ(感震停止機能)/高温モード(あぶり・高温炒めスイッチ)(大・大)/点火確認表示(大・大・小・グリル)/点火ロック/中火点火機能(大・大)
●操作性能、その他・・・天面液晶表示・天面火力表示・天面操作(天面火力表示)/カンガルー収納(操作部液晶表示)/火力LED表示/電源オートオフ機能/音声ガイダンス/レンジフード連動(エコ連動機能)/ザ・ココット対応/オーブン接続仕様
仕様
| メーカー | リンナイ |
| 型番 | RHS71W38M13RCSTW |
| 外形寸法[mm] | H269×W596×D541 |
| トッププレート寸法[mm] | H9×W742×D509 |
| グリル庫内寸法[mm] | H67×W265×D332 |
| 質量[kg] | 29.5 |
| ガス接続 | 15A(1/2B)鋼管又は金属可とう管 |
| 使用電源 | 単一形アルカリ乾電池×2(DC3V) |
ガス消費量 [13A Kw(kcal/h)] [LPガス Kw(kg/h)] | [13A]全点火時11.2、強火力バーナー(左・右)4.20、小バーナー1.27、グリル2.52 [LPガス]全点火時11.1、強火力バーナー(左・右)4.20、小バーナー1.27、グリル2.60 |
| 点火方式 | 連続スパーク方式 |
| この商品について | ※この商品の設置には取り付け工事が必要です。 ※同梱品 ザ・ココット、ココットプレート、トースト・ピザプレート |