
Wワイド火力や便利機能を搭載したビルトインコンロ。便利なグリル機能で魚だけでなく多彩な調理が可能です。
75cm幅ガラストップ シルキーシルバー/フェイス シルバー
特長
●コンロ機能・・・温度調節機能(大・大(160℃~210℃:10℃刻み))/高温自動温度調節機能(大・大)/コンロタイマー(1~90分(大・大))/炊飯機能(大(右))/湯わかし機能(保温時間タイマー)(大(右:1~90分)))/湯わかし機能(沸とう消火)(大(右)))/Wワイド火力バーナー
●グリル機能・・・グリルタイマー(1~15分)/水無し両面焼/ココットプレート対応(オプション品(RBO-PC91S))
●お手入れ性能・・・バーナーリング構造(シールド構造)/個別ワイヤーごとく/バーナーリングクリアコート加工/お手入れかんたんグリル/グリル皿クリアコート加工/汚れカバー(ホーロー)/フラット焼き網(クロムメッキ)/分解グリル/排気口カバー(2分割)
●安心機能・・・消し忘れ消火機能(大・大・小・グリル)/立消え安全装置(大・大・小・グリル)/調理油過熱防止装置(大・大・小)/焦げつき消火機能(大・大・小)/グリル過熱防止機能/揺れピタ(感震停止機能)/高温モード(あぶり・高温炒めスイッチ(大・大))/点火確認表示(大・大・小・グリル)/点火ロック/中火点火機能(大・大)
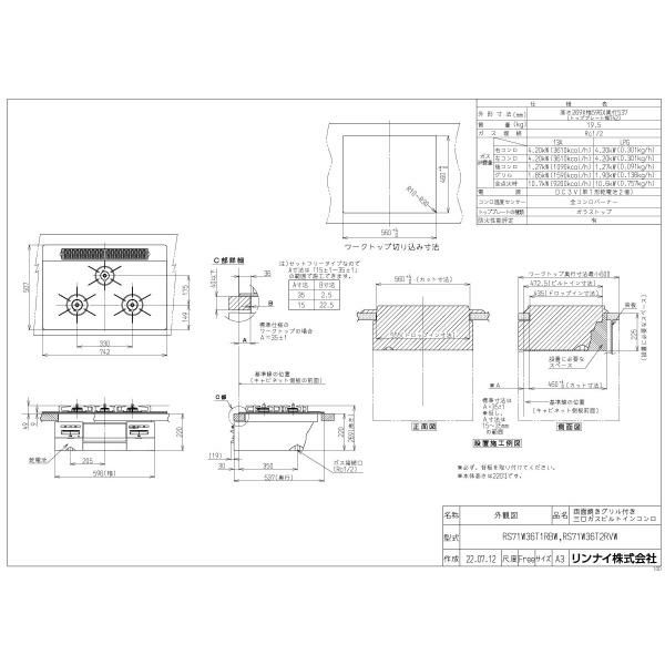
仕様
| メーカー | リンナイ | 
|---|
| 型番 | RS71W36T2RVW | 
|---|
| 外形寸法 [mm] | H269×W596×D537 | 
|---|
| グリル庫内寸法 [mm] | W242×D320×H61 | 
|---|
| 本体質量 [kg] | 19.5 | 
|---|
| ガス接続/電源 | DC3.0V(乾電池単1×2) | 
|---|
| ガス消費量 [13A Kw(kcal/h)]
 [LPガス Kw(kg/h)]
 | [13A]全点火時10.7、強火力バーナー4.20、小バーナー1.27、グリル1.85 [LPガス]全点火時10.6、強火力バーナー4.20、小バーナー1.27、グリル1.90
 | 
|---|
| この商品について | ※この商品の設置には取り付け工事が必要です。 | 
|---|